Galene

Para grandes dimensiones y pesos

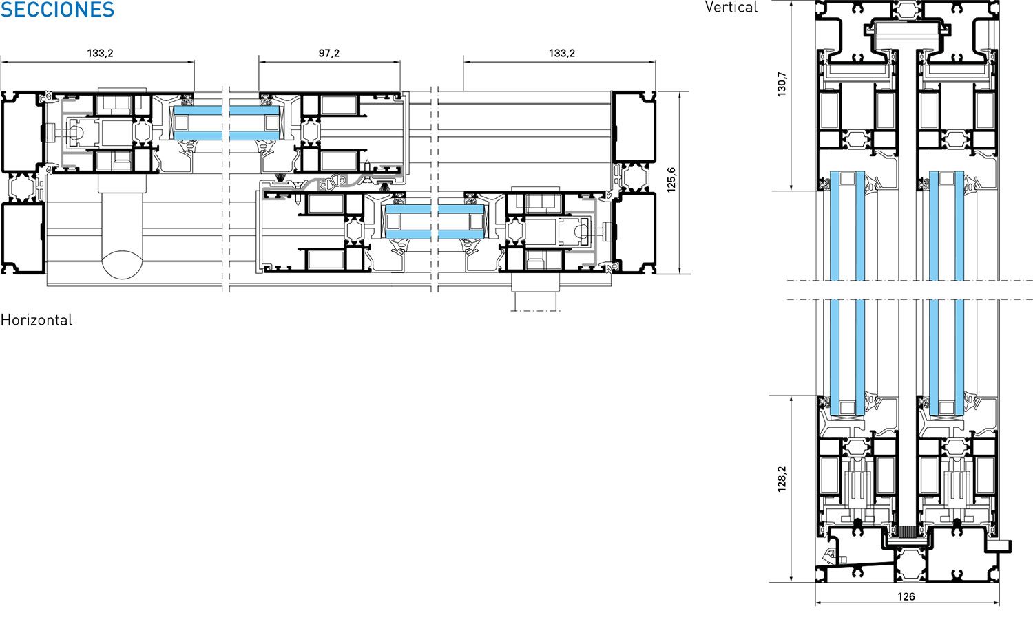
CARACTERÍSTICAS

  • Corredera elevable con rotura de puente térmico.
  • Marco de 126 con diseño optimizado para conseguir grandes superficies acristaladas.
  • Dimensiones hasta 5 m x 2.5 m en corredera 2 hojas con peso máximo por hoja de 400 kg.
  • Rodamientos que permiten una maniobrabilidad óptima.

BENEFICIOS

GRANDES DIMENSIONES

  • Dimensiones máximas: Hasta L 5,00 m x H 2,5 m. Balconera 2 hojas.
  • Peso máximo por hoja: Hasta 400 kg.

ALTAS PRESTACIONES

  • Térmicas: Uw 0= 1,6 W/m2.K y Sw = 0,59 TLw = 0.66. Doble acristalamiento con Ug = 1,0 + intercalario aislante (L 5,00 m x H 2,50 m).
  • Acústicas: -34 dBA (Ra, Tr) Balconera dos hojas (L 3,79 m x H 2,95 m).
  • Estanqueidad: A4 E7A VC3. Balconera 2 hojas (L3,00 x H2,20 m).

DIVERSIDAD DE FORMAS

  • Durabilidad: Clase de durabilidad al uso nivel 3 (20.000 ciclos) según norma EN 1191-2000.

DIVERSIDAD DE APLICACIONES

  • 2 raíles:
    • 2 hojas móviles
    • 2 hojas + fijo lateral
    • 3 hojas + fijo central
    • 3 hojas móviles
    • 4 hojas + 2 fijos laterales
    • 4 hojas móviles
  • 3 raíles:
    • 3 hojas móviles
    • 3 hojas + fijo lateral
    • 6 hojas móviles
    • 6 hojas + 2 fijos laterales
  • Galandage.Monorraíl:
    • 1 hoja monorraíl
    • 2 hojas monorraíl