Lumeal XXL

Para espacios de dimensiones fuera de lo habitual

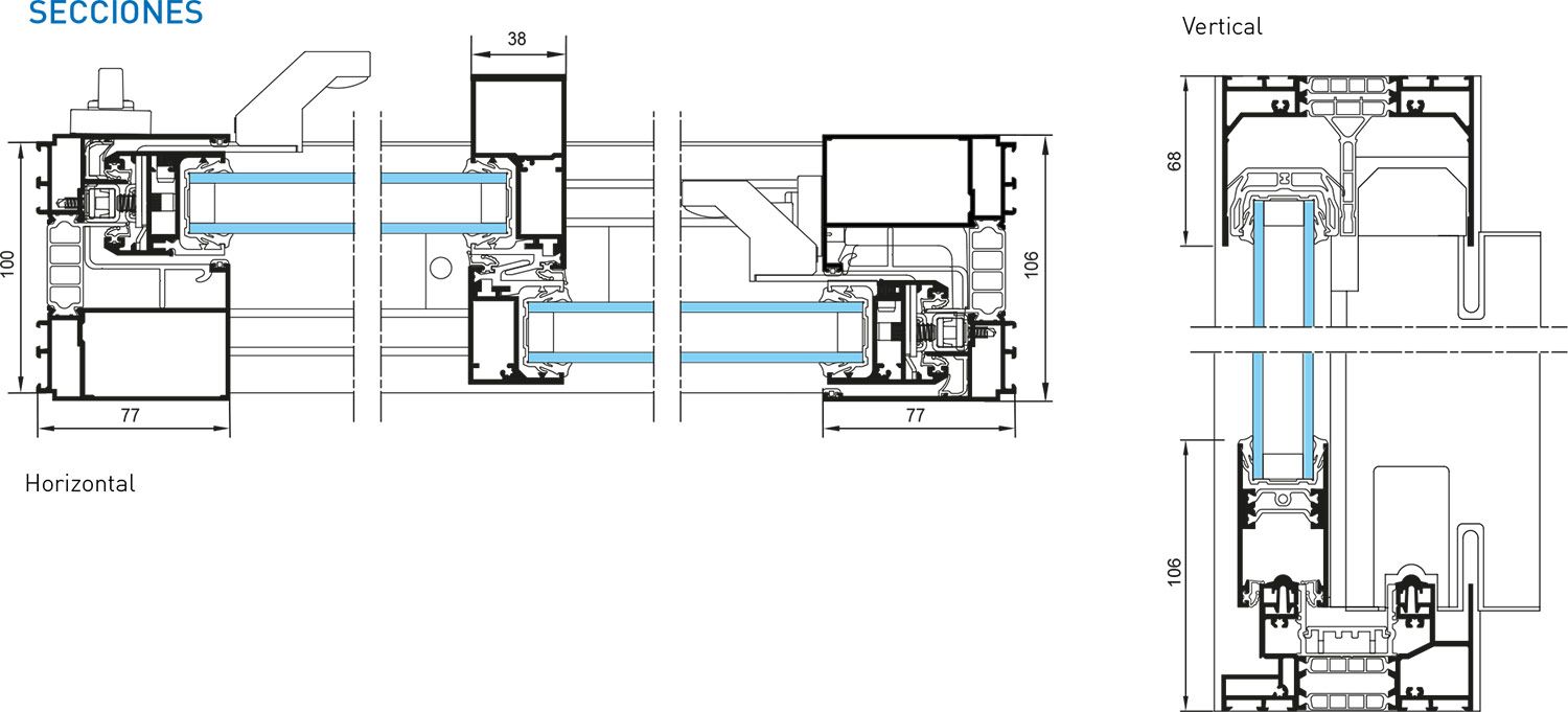
CARACTERÍSTICAS

  • Creación de espacios acristalados de dimensiones fuera de lo habitual.
  • Perfil central reforzado que asegura una gran resistencia al viento del acristalamiento.
  • Los perfiles superior y los laterales pueden ocultarse en obra por la parte exterior.

BENEFICIOS

GRANDES DIMENSIONES

  • Dimensiones máximas: Hasta L 6,00 m x H 3,00 m. Balconera 2 hojas 2 raíles.
  • Peso máximo por hoja: Hasta 600 kg

ALTAS PRESTACIONES

  • Térmicas: Uw = 1,2 W/m2.K y Sw = 0,46 TLw = 0,65
  • Doble acristalamiento con Ug = 1,0 W/m2.K + intercalario aislante (L 4,50 m x H 2,70 m)
  • Acústicas:-35 dBA (Ra, Tr) Balconera 2 raíles - 1 hoja + 1 fijo (L 2,8 m x H 2,2 m)
  • Estanqueidad: A4 EB4 CC2 Balconera 2 hojas 2 raíles (L 2,89 m x H 2,25 m)

DIVERSIDAD DE FORMAS

  • Accesibilidad: perfil suelo para personas con movilidad reducida

DIVERSIDAD DE APLICACIONES

  • 2 raíles:
    • 2 hojas
    • 3 hojas
    • 4 hojas
  • 3 raíles:
    • 3 hojas
    • 6 hojas