Soleal GY 65

La corredera universal que se adapta a todos los proyectos

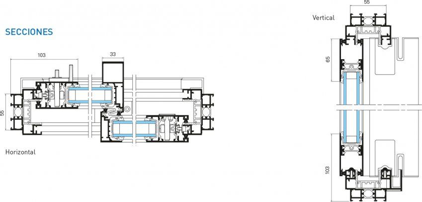
CARACTERÍSTICAS

  • Numerosas aplicaciones para responder a los proyectos de edificación.
  • Cierre multipuntos (de 1 a 4) con opción de cerradura con llave.
  • Drenaje oculto en todas las aplicaciones.
  • Solución de accesibilidad PRM, disponible en todas las aplicaciones.

BENEFICIOS

GRANDES DIMENSIONES

  • Dimensiones máximas: Hasta L 4 ,30 m x H 2 ,60 m. Balconera 2 hojas 2 raíles.
  • Peso máximo por hoja: Hasta 275 kg

ALTAS PRESTACIONES

  • Térmicas: Uw hasta 1,4 W/m².K, Sw: 0,45 y TLw: 0,59
  • Doble acristalamiento con Ug= 1,0 W/m².K + intercalario aislante (L 4,30 m x 2,60 m)
  • Acústicas: -35 dBA (Ra, Tr). Ventana 2 raíles - 2 hojas (L 1,85 m x H 1,48 m)
  • Estanqueidad: A4 E6A VB2. Balconera 2 raíles - 2 hojas (L 3 m x H 2,50 m)

DIVERSIDAD DE FORMAS

  • Accesibilidad: Perfil suelo para personas con movilidad reducida

DIVERSIDAD DE APLICACIONES

  • Base:
    • 2 hojas
    • 2 hojas + compuesto
    • 3 hojas dependientes
    • 3 hojas independientes
    • 4 hojas
  • 3 raíles:
    • 3 hojas
    • 6 hojas
  • 4 raíles:
    • 4 y 8 hojas
  • Galandage:
    • Monorraíl: 1 hoja - 2 hojas
    • 2 raíles: 2 hojas - 4 hojas
    • 3 raíles: 3 hojas - 6 hojas