Tigal

La practicable deslizante

CARACTERÍSTICAS

  • Cinemática de la ventana: apertura por desplazamiento con separación interior de 6 mm y traslación de la hoja que se abre en paralelo a la parte fija.
  • Sistema híbrido con cierre perimetral multipuntos y sistema de estanqueidad patentado.
  • Diseño
    • Hoja vista u oculta
    • Herraje oculto
    • Drenaje oculto

BENEFICIOS

GRANDES DIMENSIONES

  • Alturas posibles de suelo a techo hasta: Al: 2,70 m - An: 4 m (1 hoja + 1 fijo)
  • Peso: hasta 300 kg por hoja
  • Espesor del acristalamiento hasta 52 mm

DIVERSIDAD DE APLICACIONES

  • Microventilación:
    • Desplazamiento de 6 mm de la hoja
    • Bloqueo en posición de seguridad
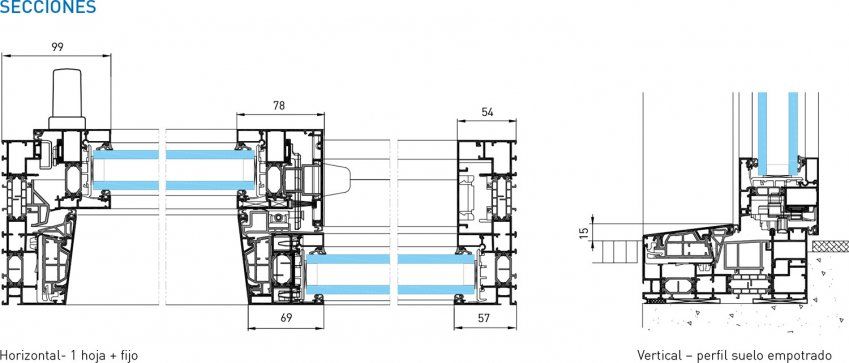
  • Perfil suelo empotrado:
    • Altura 15 mm (PMR)

DIVERSIDAD DE FORMAS

  • Hoja vista u oculta
  • Herraje oculto
  • Drenaje oculto

ALTAS PRESTACIONES

  • Aplicación con o sin rotura de puente térmico
  • Térmica:
    • Hasta Uw: 0,85 W/m² K (Ug: 0,5 W/m² K), triple acristalamiento, Tlw = 0,63, Sw = 0,51 1 hoja + fijo, An x Al = 2,30 x 2,18
  • Estanqueidad:
    • Permeabilidad al aire: Clase A4
    • Microventilación: Clase A1
    • Estanqueidad al agua: E1200
    • Resistencia a la presión del viento: Clase 5
  • Presión de servicio 1200 Pa
  • Presión de seguridad 1800 Pa
    • Clase 5 hasta 3000 Pa (disponible a finales de 2019)
  • Acústica:
    • RaTr: 40 dBa
    • Doble acristalamiento 50 mm: 88,2 Si / 20 / 66,2 Si
    • Esfuerzo mínimo de maniobra: Clase 1
    • Características de resistencia a la efracción: Nivel RC2 y PAS24* (*Disponible a principios de 2021)